Get Exclusive

Updates

WELCOME BACK, !

Click here to update your information

Update your information

Welcome back,

Update your info

Update your info

SIGN UP FOR UPDATES UPDATE YOUR INFORMATION UPDATE YOUR INFORMATION

Napa by Richmond American Homes

From $455,990

Estimate Monthly Payment

2,170 Sq Ft

3 Bed

2.5 Bath

2 - Car Garage

2 Stories

Contact

Carly Hall & Theresa Young

Fusion Model Home Hours:
Sat-Thurs: 10am-6pm
Fri: 1pm-6pm

Designated Broker: John Bargnesi

placeholder

Description:

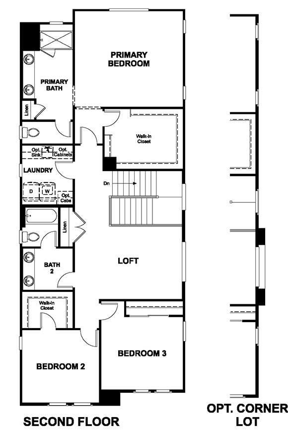
The main floor of the two-story Napa plan offers a charming covered porch, a generous great room, an open dining area and a kitchen boasting a roomy pantry and a center island. You’ll also appreciate a convenient powder room and a covered patio. On the second level, discover a laundry, a loft, a shared bath and three bedrooms, including a beautiful primary suite showcasing an immense walk-in closet and a private bath with double sinks.

More
Richmond American Homes in Blossom Rock Napa Elevation A
Richmond American Homes in Blossom Rock Napa Elevation B
Richmond American Homes in Blossom Rock Napa Elevation C
Richmond American Napa Model Home Exterior
Richmond American Napa Livibng
Richmond American Napa Family
Richmond American Napa Kitchen
Richmond American Napa Kitchen2
Richmond American Napa Kitchen3
Richmond American Napa Halfbath
Richmond American Napa Bed
Richmond American Napa Bath
Richmond American Napa Closet
Richmond American Napa Bed2
Richmond American Napa Bath2
Richmond American Napa Bed3
Richmond American Napa Upstairs
Richmond American Napa Laundry
Richmond American Napa Patio
Richmond American Napa Patio2
Richmond American Napa Garage

Floor Plan

Print Floor Plan
Richmond American Homes in Blossom Rock Napa Floor Plan
Richmond American Homes in Blossom Rock Napa Floor Plan
Richmond American Homes in Blossom Rock Napa Floor Plan

Map Location

Mortgage Calculator

$
value should not be empty
$
%
%
%
$

Your Payment:

This calculator and its results are intended for illustrative purposes only and are not an offer or guarantee of financing. Rates and payment terms, if offered by a lender, will vary upon an applicant’s credit-worthiness and are subject to change. Additional costs, such as property taxes, insurance and HOA fees, may apply.

See more mortgage rates on Zillow.